ENGLISH
ホーム
Suomi Koti について
製 品
スタイル&デサイン
技術情報
なせ木造建築?
お問合せ
Suomi-Koti プラン
<< ECO P5
ECO P7 >>
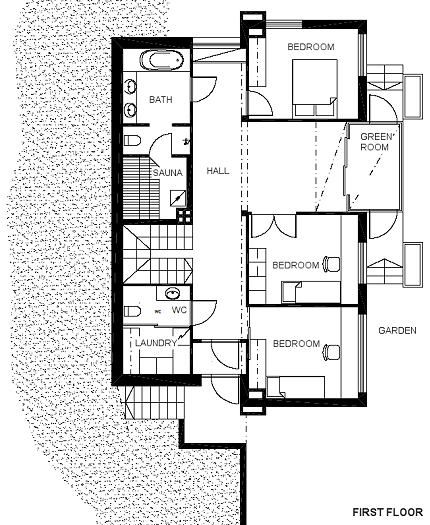
Eco P6 - Sanna
© KIMMO KUISMANEN ARCHITECTS
© 2014 :: Suomi-Koti ::
All rights Reserved